Client
Private
Private
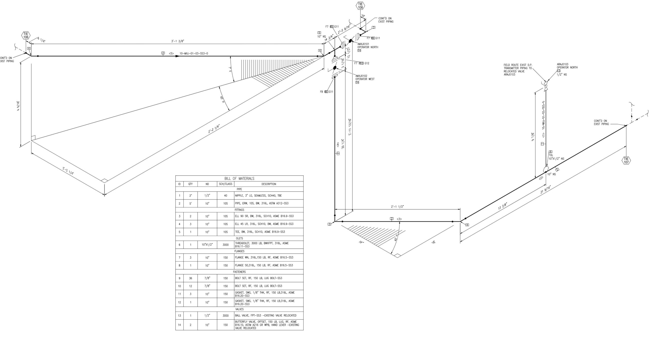
Anderson provided Lidar scanning, 3D modeling, pipe specification and iso-graphics for a new fermentation and preservatives plant. The project required upgrading existing utilities, 3A and A270 pipe design, boiler upgrades, HVAC Design and steam/condensate design and installation.
Since 1989 Anderson Engineering of Minnesota, LLC has been helping developers, land owners, design firms, and all levels of government take their projects from concept to completion.
Employee Login
